Сигнал 20 Фото – Telegraph
Прибор приемно-контрольный охранно-пожарный Бол...
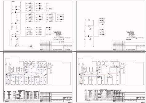
Сигнал 20п схема подключения – Telegraph
Сигнал-20 — Схема подлкючения прибора «Сигнал-20»
Сигнал-20П SMD
Сигнал-20П Приемно-контрольный охранно-пожарный...
Болид прибор Сигнал-10,Сигнал-20П,С2000М,С2000-...
Устройство программное ''Сигнал-202''.
Сигнал 20 Фото — Картинки фотографии
Прибор приемно-контрольный охранно-пожарный Сиг...
Сигнал 20п smd купить в Новосибирске | Товары д...
Сигнал 20п SMD | Festima.Ru – частные объявления
Сигнал-20М
Сигнал 20П Инструкция По Эксплуатации - kanatysz
Сигнал-20П | Контрольный прибор 20 шлейфов, воз...
20P signal 2.54mm female terminal 180 ° plug-in...
Как убрать неисправность в приборе Сигнал-20М.
Сигнал 20 Инструкции - instructiontap
Сигнал-20П SMD — Прибор приемно-контрольный охр...
Сигнал 20п схема подключения реле
Возобновление производства "Сигнал-20П" и "Сигн...